Mid-Century Modern Living
6602 35th St WUniversity Place, WA 98466 $580,000
Mid-Century Modern Living
MLS: 2394227
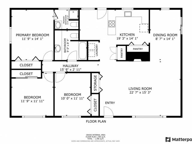
Experience timeless mid-century modern living in this custom 1964 home by architect J.M. Morris, situated on a large, corner lot. Original oak floors, skylights, and abundant natural light highlight the spacious interior. Enjoy stunning golf course views overlooking Fircrest Golf Club’s 2nd hole from the living room. Recent updates include a new roof and master bath (2024), HVAC (2022), windows and doors (2019), refinished floors, and upgraded plumbing. The kitchen offers a blank canvas for your dream design. Perfectly located close to Fircrest amenities, this unique home won’t last!
Property Highlights
Custom 1964 mid-century modern home designed by architect J.M. Morris
Oversized corner lot (over 10,000 sq ft) with mature landscaping
Refinished original oak hardwood floors, skylights, and authentic mid-century fixtures
Spacious living room with large window overlooking Fircrest Golf Club’s 2nd hole
Stunning golf course views from main living areas
New roof and master bath remodel completed in 2024
New HVAC system (furnace and AC) installed in 2022
New windows and doors installed in 2019 (except 2 windows)
Updated plumbing fixtures including new toilets and shower valves
Kitchen ready for customization and personal updates
Share This Home
Contact
Wes Jones
Managing Broker
Erica Carlile
Associate Broker
How may we help you?
As you can see, this home has been sold. However, you can still reach out to us for any additional information if you'd like.
Simply call or send a direct email to the agents listed, and we would be happy to help.


